浮动出液装置
浮动出液装置用于储油罐内抽取上层液体之用。
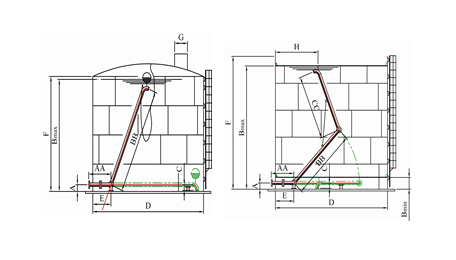
用于各种立式或卧式储罐,其一端连于油罐底部出油短管上,另一端用浮筒吊在液面下或连接在星空视频APP下载安装上,并随液面升降而上下浮动,始终抽取表面层燃油。由于水分和杂质在重力的作用下沉淀于底部,因此使用浮动出油装置抽取上层较洁净的燃油,保证了发油的质量。
浮动出液装置主要由连接法兰、旋转接头、主支撑、辅助支撑、浮筒、管件、整流栅、静电导线等部件组成。
浮动出液装置可做罐下采样器主支撑用。

性能特点:
1.整体采用刚性结构,安装简单,转动灵活,经久耐用。
2.旋转接头采用内外圈加注滚珠结构型式,结构紧凑,旋转灵活。
3.密封采用聚四氟密封,能承受内外压且长期无需维护。
3.分单臂、双臂等结构适用于各种卧式、立式拱顶及浮顶储油罐。
4.固定浮筒与移动浮筒配合带动管道前端起到产生浮力的作用。
5.在进油口端安装有整流栅,防止涡流灌装。
6.可当作进液管用。
7.整个结构管道中内径相同,可以采用自动清洗球来进行清洗。
8.在浮动管的下部另设一个出油口可以改制成均匀混合出液装置。
9.可在主管道上附加罐下采样器、液位指示器等。









